Maison à louer
Accueil
Plans
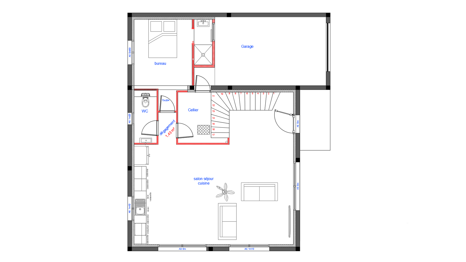
RDC
Entrée
Hall salon
Cuisine
WC
Cellier
Chambre 1
Salle de bain
Garage
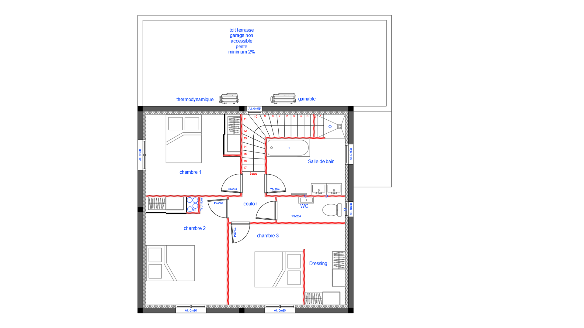
Étage
Chambre 1
Chambre 2
Chambre 3
WC
Dressing
Salle de bain
Dégagement
Autres Prestations
Localisation
Contact
Plans
Previous
Next
Description des plans.